二、测量原理
楔式流量计的基本流量方程式来自于帕努利原理(能量守衡和连续方程),通过楔块产生差压,该差压正比于质量或体积流量。楔式流量计的检测件是一块纵截面成 V 型的节流件,安装在管道的上部,它的圆滑顶角朝下,这样有利于含悬浮颗粒的液体或粘稠液体及脏污介质顺利通过, 不会在节流件上游侧产生滞流。当流体通过楔块时,由于楔块的节流作用,将会在楔块的上下游产生差压,该差压与质量或体积流量成正比。通过与差压变送器连接,测得差压从而获得流量值。对同一管径,不同的楔比 H/D(楔块开口高度 H 和管道直径 D 之比)可得到不同的典型流量范围,可应用于困难的流量测量,并保证精确可靠的测量结果。
三、主要结构特点和适用范围
由于楔形流量计独特的结构,因此可用于粘滞性液体的流量测量,粘度可高达 500 mPa.S, 如燃油、渣油、重油等;也适用于含悬浮颗粒的固液混合物,如浆状、污水等流体的流量测量。
楔形流量计雷诺数使用范围宽广,适用于极低的雷诺数(ReD=300),而雷诺数上限可达到数百万以上,在雷诺数从 300 到数百万范围内,流量和差压始终保持方根关系。
楔形流量计结构简单、可靠、无可移动部件与易损部件,耐磨性好,长期运行精度高。经标定的楔式流量计流量系数基本误差有+/-0.05%以内,重复性和稳定性好,可靠性高,寿命长, 成本低,安装维护方便。
1. 适合于低雷诺数液体的流量测量。
2. 适合于低黏度大流量、高黏度小流量流体。
3. 结构独特,无沉积、不堵塞,适用范围广,除应用于一般气体、液体、蒸汽外,特别适用于高粘度、结晶混合液、脏污的液体、高含尘气体及含固体颗粒液体、浆状液体,如燃料油、渣油、油浆、废水等的流体测量,具有自清洁能力,无滞流区。
4. 适合于公称直径 DN25—DN1200 的管道。
5.压力损失较低与文丘里管相似,但结构比其紧凑轻巧。
6. 管嘴取压楔式流量计用于压力等级 ANSI 1500 RF,温度 450 ℃以下的各种场合;法兰取压适用于压力等级 ANSI 900 RJ 以下各种场合。
四、安装要求
1. 检测件应与管道中心成 90℃。
2. 楔式流量计安装时可不考虑介质流向。
3. 楔式流量计在水平管道上安装时,取压口应在管道水平中心线上 45℃范围内;垂直管道上安装时,取压口的不同标高将会产生附加压力,这应在变送器安装后,靠重新调零来解决。
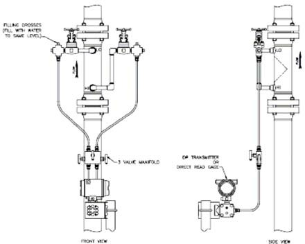
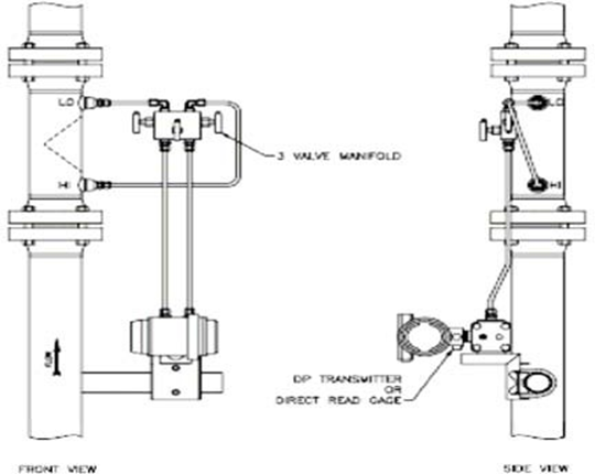
对于液体的应用:取压口位置建议水平或向下倾斜,变送器推荐安装在与流量计水平或低于流量计的位置,如下图所示:


4. 管嘴取压楔式流量计在测量高粘度、易结晶、结焦或含固体颗粒的流体时,取压处应伴热式外加伴热并设置隔离容器,必要时引压管线可打冲洗油。
5. 变送器的安装请参见变送器说明书。
6. 导压管的敷设
对一体化流量变送器,导压管已在产品出厂时安装连接好,用户只要将差压电信号接 至积算仪或系统即可。
对普通流量计,导压管的敷设还应注意以下方面:
(1) 应按被测流体的性质参数使用耐压、耐腐蚀的材料制造,其内径不得小于 6mm, 长度在 16m 之内。
(2) 导压管应垂直或倾斜敷设,为了避免差压信号失真,正负压导压管应尽量靠近敷设,严寒地区导压管应做防冻处理。
(3) 对法兰型取压接口,必须采用相同类型及压力等级的配对法兰,安装过程中注意推荐的力矩参数。
7. 楔式流量计的上、下游要带有一定长度的没有阻力的直管段。下游小直管段长度为安装管段直径的六倍;上游小直管段长度取决于楔比、直管段前阻力件的类型的管道的直径。(A、B 是指到楔形节流件的距离,产品出厂时节流件在流量计的中间。)
五、选型说明